集合裝置系統/配件
集合裝置系統
集合裝置閥系列
集合裝置加熱器
集合裝置配件
配管用調整器
逆火防爆元件
過濾器
小型閥系列
集合裝置系統
氧氣集合裝置
乙炔集合裝置
CO
2
集合裝置
N
2
集合裝置
CO
2
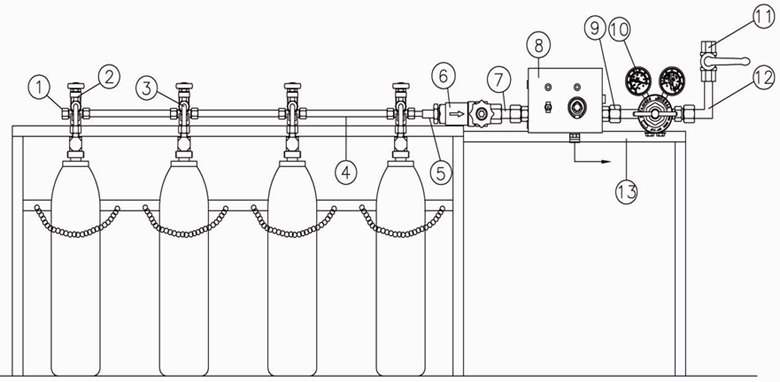
用集合裝置 : 4瓶直列式
規格 :
1. 盲栓 (ENDCAP 22)
2. 三方閥 (NV-3W)
3. CO
2
用連接管部 CO
2
-CU-YK
4. 無縫不鏽鋼管 (SS-CP/300)
5. 轉換接管 CP 29-22
6. 過濾除塵器 (STRANER)
7. 轉換接管 CP 29-22
8. CO
2
加熱器 CO
2
-H1KW/230V
9. 轉換接管 CP 29-22
10. 大型切替調整器
11. 球閥
12. L型管
13. 固定鐵架
Telephone
Facsimile
E-mail
Address
+886-2-2809-5789
+886-2-2809-3567
+886-2-2809-6189
info@3arrow.com.tw
新北市淡水區八勢一街5號
備有停車埸
Copyright
© 2006
銘伸企業股份有限公司 版權所有•轉載必究